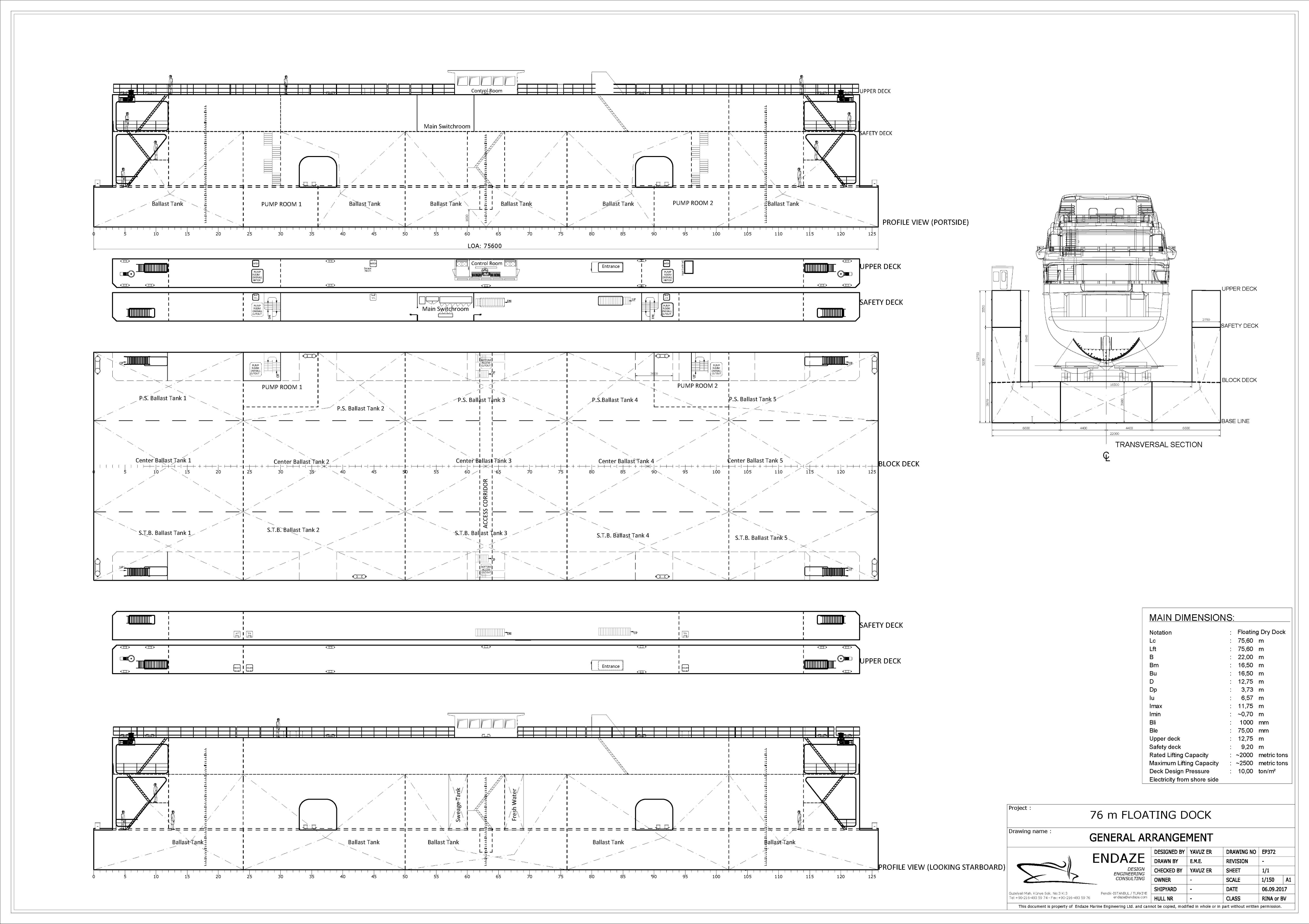
“76 m Floating Dock” | |
Endaze Project No : | EP372 |
Name : | - |
Shipyard : | - |
Owner : | - |
Classification : | RINA/B.V. |
Main Dimensions | |
Length : | 75,60 m |
Breadth : | 22,00 m |
Depth : | 3,73 m |
Draught : | 0,70 m(min.), 11,75 m (max.) |
Speed : | - |
Propulsion : | - |
Hull Material : | Steel |
S.S. Material : | Steel |
Main Engine Power : | - |
Aux. Generator : | - |
Other : | Rated lifting capacity: 2000metric tons Maximum lifting capacity: 2500metric tons Deck Design Pressure: 10ton/m² |
Scope | |
Conceptual | ENDAZE |
Consulting | ENDAZE |
Basic Design | • |
Structural Detailed Design | • |
Machinery and Piping Detailed Design | • |
Engineering Calculations | • |
Production | • |
Links | |
