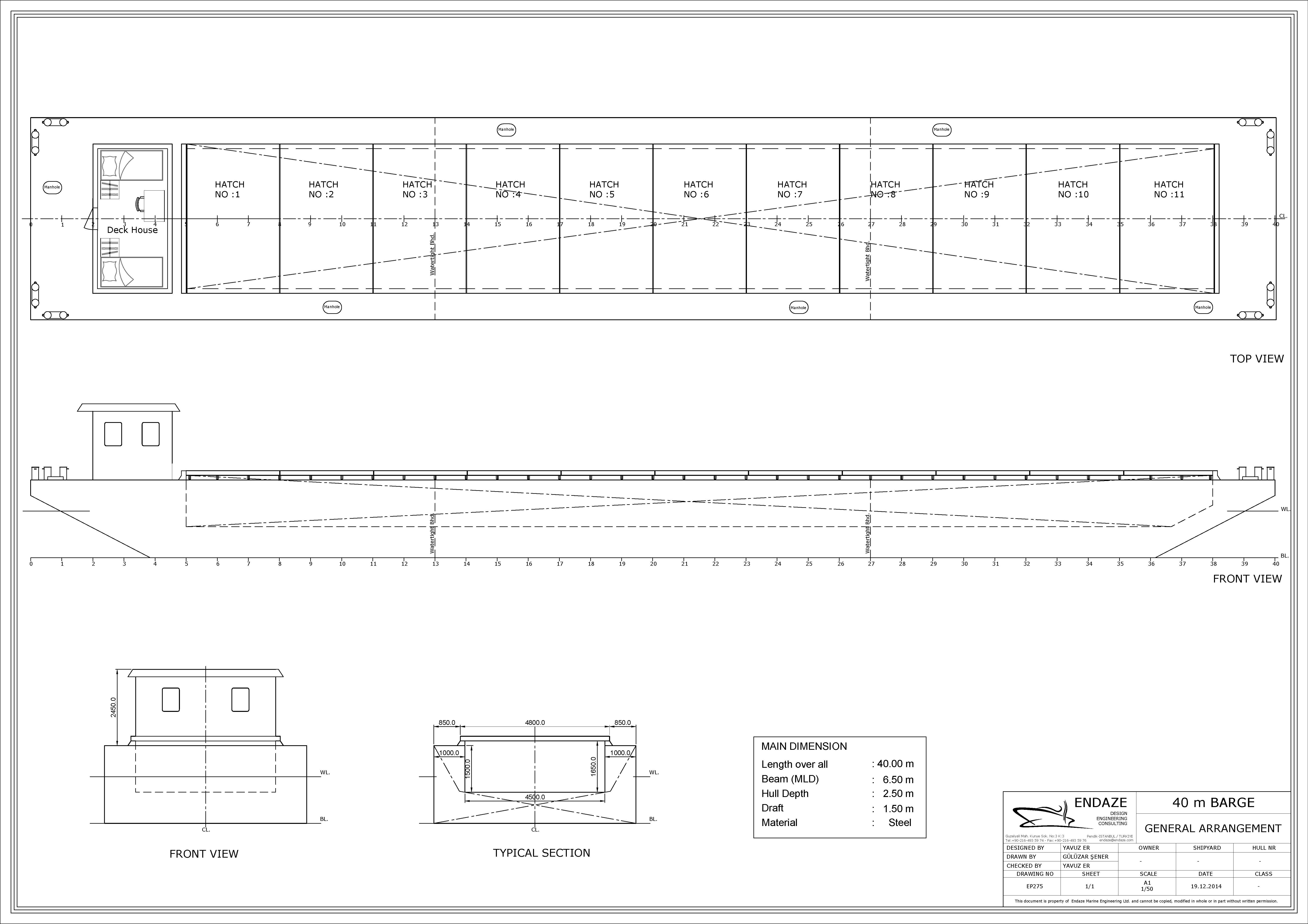
“40 m barge” | |
Endaze Project No : | EP275 |
Name : | - |
Shipyard : | - |
Owner : | - |
Classification : | - |
Main Dimensions | |
Length : | 40,00 m |
Breadth : | 6,50 m |
Depth : | 2,50 m |
Draught : | 1,50 m |
Speed : | - |
Propulsion : | - |
Hull Material : | Steel |
S.S. Material : | Steel |
Main Engine Power : | - |
Aux. Generator : | - |
Other : | - |
Scope | |
Conceptual | ENDAZE |
Consulting | ENDAZE |
Basic Design | • |
Structural Detailed Design | • |
Machinery and Piping Detailed Design | • |
Engineering Calculations | • |
Production | • |
Links | |
