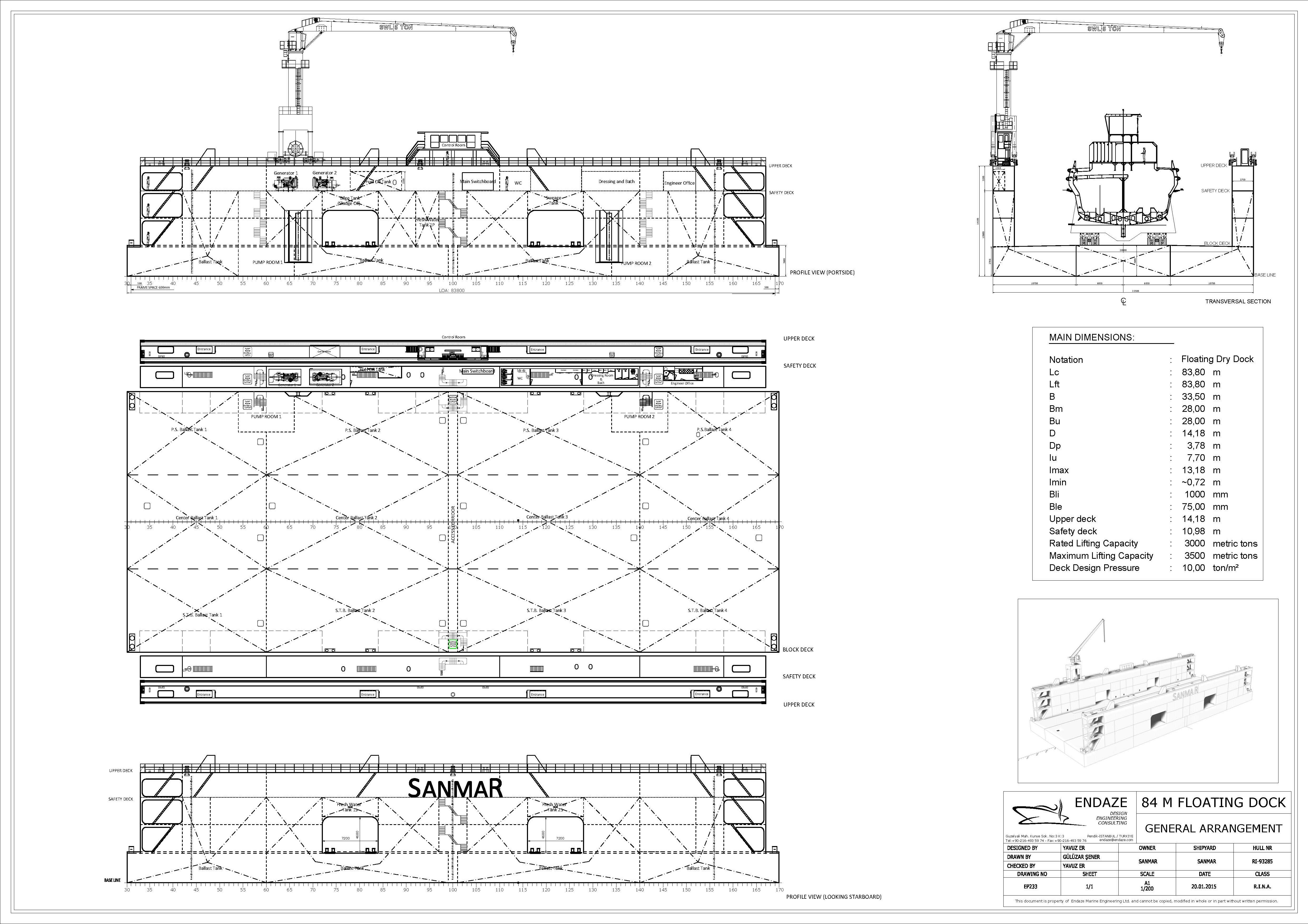
“84 m Floating Dock” | |
Endaze Project No : | EP233 |
Name : | - |
Shipyard : | SANMAR |
Owner : | SANMAR |
Classification : | - |
Main Dimensions | |
Length : | 83,80 m |
Breadth : | 28,00 m |
Depth : | 3,78 m |
Draught : | min.0,72 m max.13,18 m |
Speed : | - |
Propulsion : | - |
Hull Material : | - |
S.S. Material : | - |
Main Engine Power : | - |
Aux. Generator : | - |
Other : | - |
Scope | |
Conceptual | ENDAZE |
Consulting | ENDAZE |
Basic Design | ENDAZE |
Structural Detailed Design | ENDAZE |
Machinery and Piping Detailed Design | ENDAZE |
Engineering Calculations | ENDAZE |
Production | • |
Links | |
















