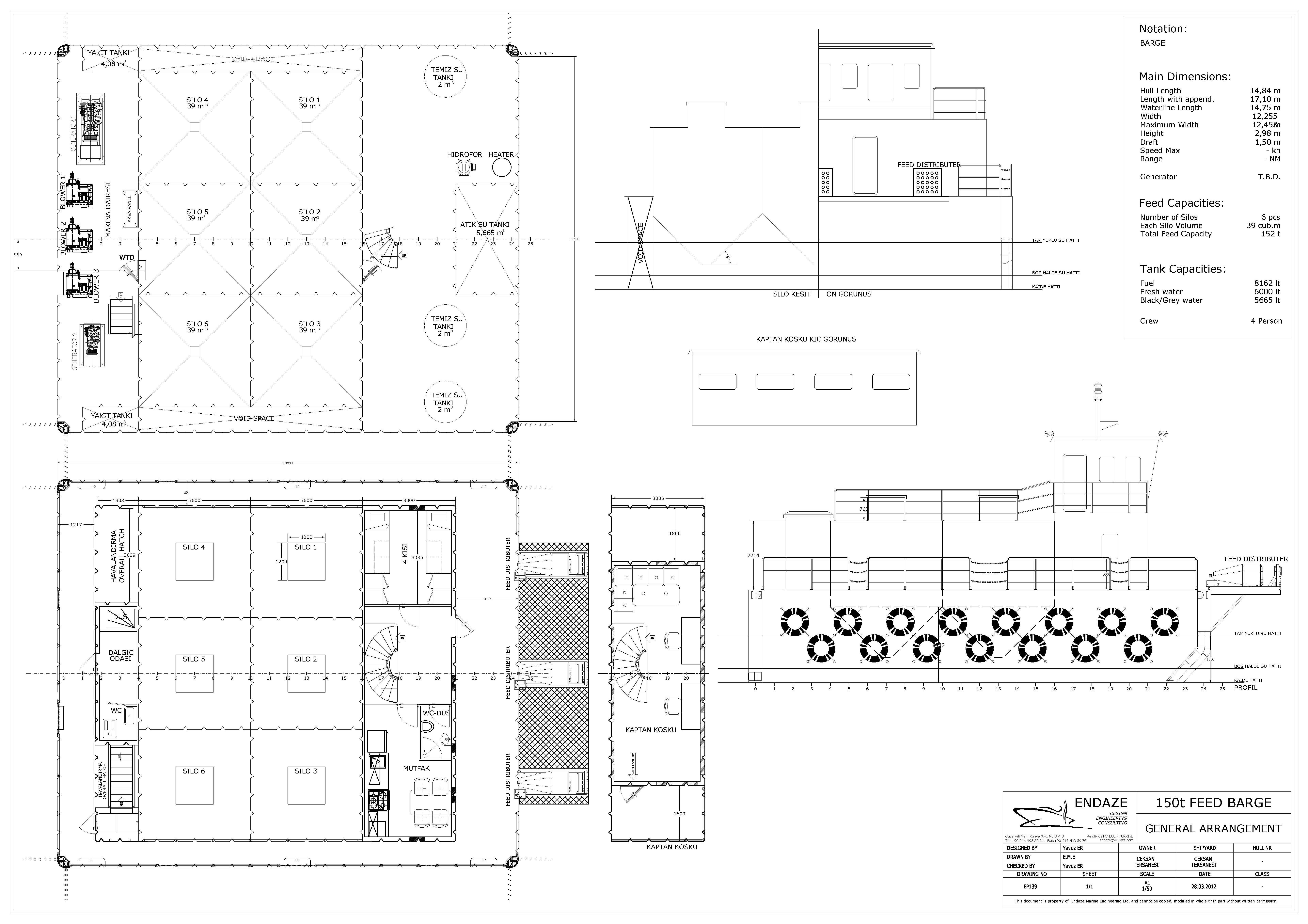
“150 t Feed Barge” | |
Endaze Project No : | EP139 |
Name : | ABALIM6 |
Shipyard : | ÇEKSAN TERSANESİ |
Owner : | - |
Classification : | - |
Main Dimensions | |
Length : | 17.10 m |
Breadth : | 12.45 m |
Depth : | 2.98 m |
Draught : | 1.50 m |
Speed : | - |
Propulsion : | - |
Hull Material : | - |
S.S. Material : | - |
Main Engine Power : | - |
Aux. Generator : | - |
Other : | 4 Crew |
Scope | |
Conceptual | ENDAZE |
Consulting | ENDAZE |
Basic Design | ENDAZE |
Structural Detailed Design | ENDAZE |
Machinery and Piping Detailed Design | ENDAZE |
Engineering Calculations | ENDAZE |
Production | • |
Links | |


